Tel. 02571 2982
  • Neubau
  • Bauen im Bestand
  • Arbeiten & Reparaturen
  • Referenzen
  • Angebote
  • Wir
Tel. 02571 2982

Mehrfamilienhaus mit 7 Wohneinheiten (zum Kauf)

Drosselstr. 12 in Greven

Baubeginn erfolgt – Fertigstellung Sommer 2026

Bei diesem Neubau handelt es sich um ein Mehrfamilienhaus mit 7 Wohneinheiten, welche sich auf drei Etagen verteilen: Erd-, Ober- und Dachgeschoss. Hierbei handelt es sich um Eigentumswohnungen. Die Unterkellerung des Treppenhauses bietet Platz für die Heizung, die weitere Haustechnik und die Hausanschlüsse.

Das Gebäude wird in massiver Bauweise mit einem Satteldach als KfW-Effizienzhaus 40 (KFWG) Standard errichtet. Beheizt wird das Gebäude mit einer Luft-Wasser-Wärmepumpe.

Die einzelnen Wohnungen erreichen Sie über das großzügig geschnittene und helle Treppenhaus oder bequem mit dem Plattformlift. Durchdachte Wohnungsgrundrisse von ca. 54 m² bis ca. 153 m² sorgen für ausreichend Privatsphäre oder auch Abstellmöglichkeiten.

Ausstattung:

  • Plattformlift
  • Luft-Wasser-Wärmepumpe
  • Photovoltaik-Anlage
  • Fahrradunterstand
  • Gemeinschaftsgarten im rückwärtigen Bereich des Grundstücks
  • Fußbodenheizung
  • Fenster mit 3-fach-Verglasung
  • Elektrische Rollladen
  • Komfortable Sanitärausstattung
  • Hochwertige Elektroausstattung
  • Boden- und Wandfliesen im Badezimmer und Gäste-WC (falls vorhanden)
  • Vinylboden in allen anderen Räumen und Fluren
  • Schlüsselfertig vom Bauträger
  • Vorrichtung für Elektromobilität möglich
  • Seniorenfreundlich

Energie:
KfW 40EE Standard. (Energieausweis in Bearbeitung).

Lageplan PDF

Drosselstr. 12

89,51 m², 3-Zimmer-Wohnung, Tageslichtbad, Terrasse mit angrenzendem Abstellraum, Garten, inkl. 1 PKW-Stellplatz

Weitere Informationen sowie Kaufpreise auf Anfrage erhalten Sie über unseren Partner Jutta Lamboury Immobilien.

Kaufanfrage

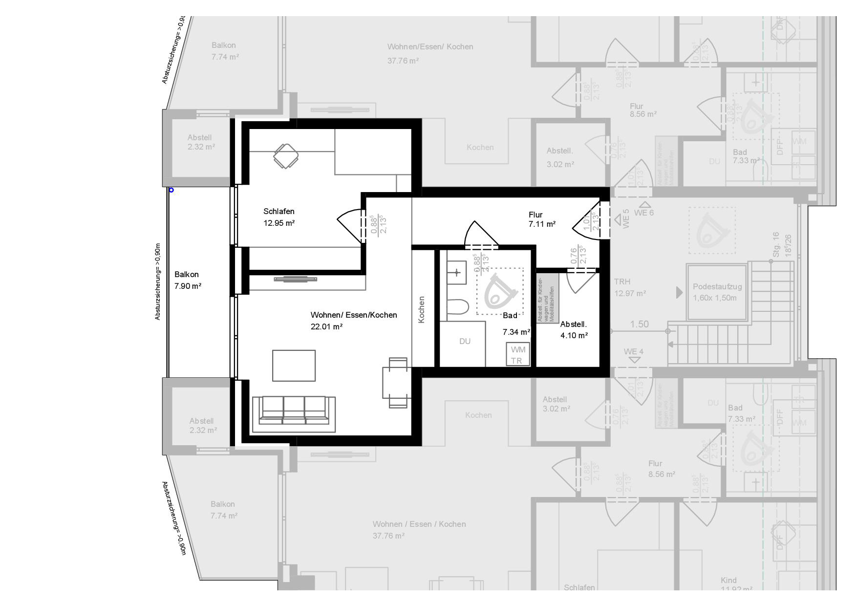
Wohnung 2 (Erdgeschoss Mitte)

Drosselstr. 12

54,08 m², 2-Zimmer-Wohnung, großes Duschbad, überdachte Terrasse, Garten, inkl. 1 PKW-Stellplatz

Weitere Informationen sowie Kaufpreise auf Anfrage erhalten Sie über unseren Partner Jutta Lamboury Immobilien.

Verkauft

Wohnung 3 (Erdgeschoss rechts)

Drosselstr. 12

89,51 m², 3-Zimmer-Wohnung, Tageslichtbad, Terrasse mit angrenzendem Abstellraum, Garten, inkl. 1 PKW-Stellplatz

Weitere Informationen sowie Kaufpreise auf Anfrage erhalten Sie über unseren Partner Jutta Lamboury Immobilien.

Verkauft

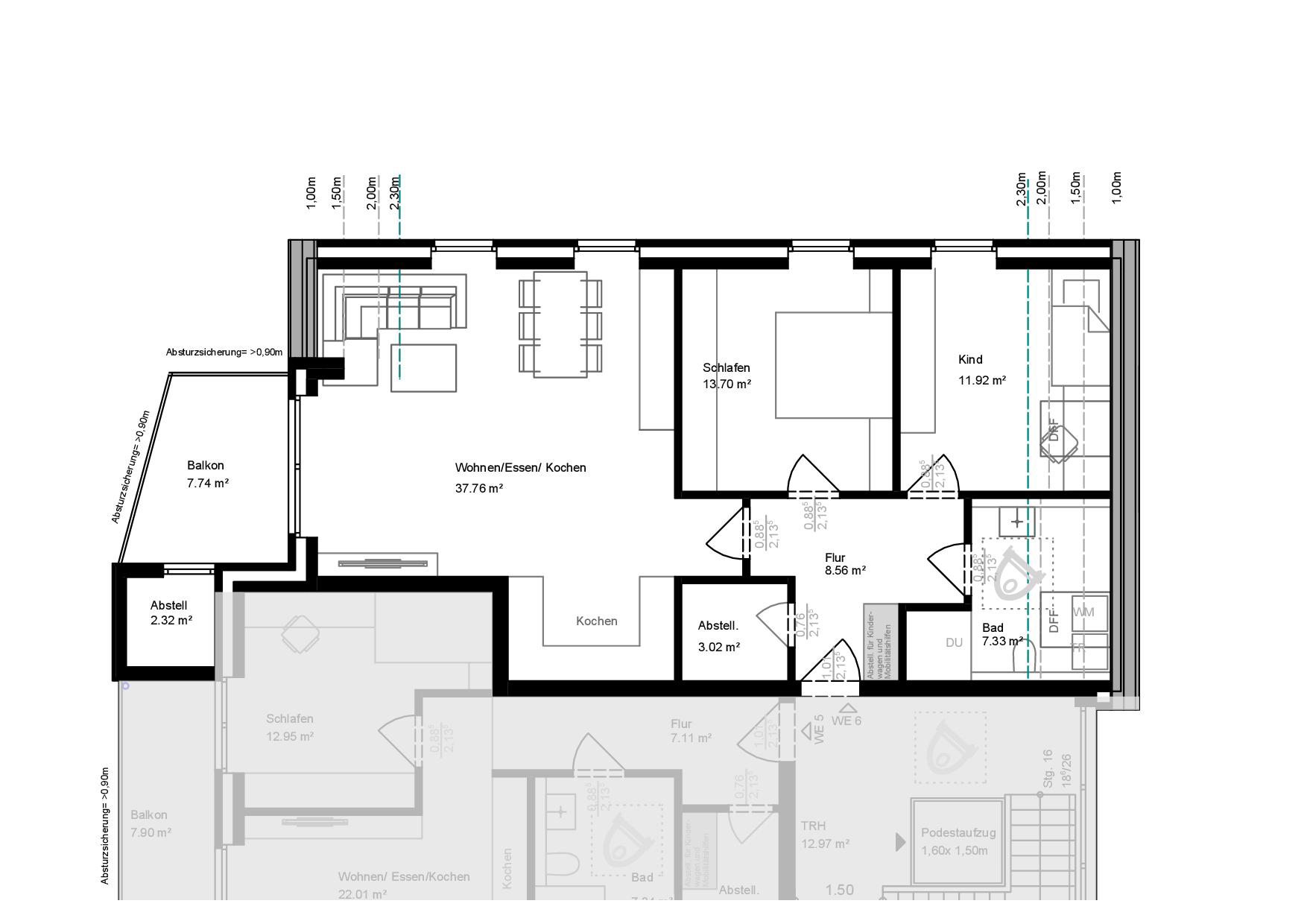
Drosselstr. 12

85,94 m², 3-Zimmer-Wohnung, Tageslichtbad, überdachter Balkon mit angrenzendem Abstellraum, inkl. 1 PKW-Stellplatz

Weitere Informationen sowie Kaufpreise auf Anfrage erhalten Sie über unseren Partner Jutta Lamboury Immobilien.

Verkauft

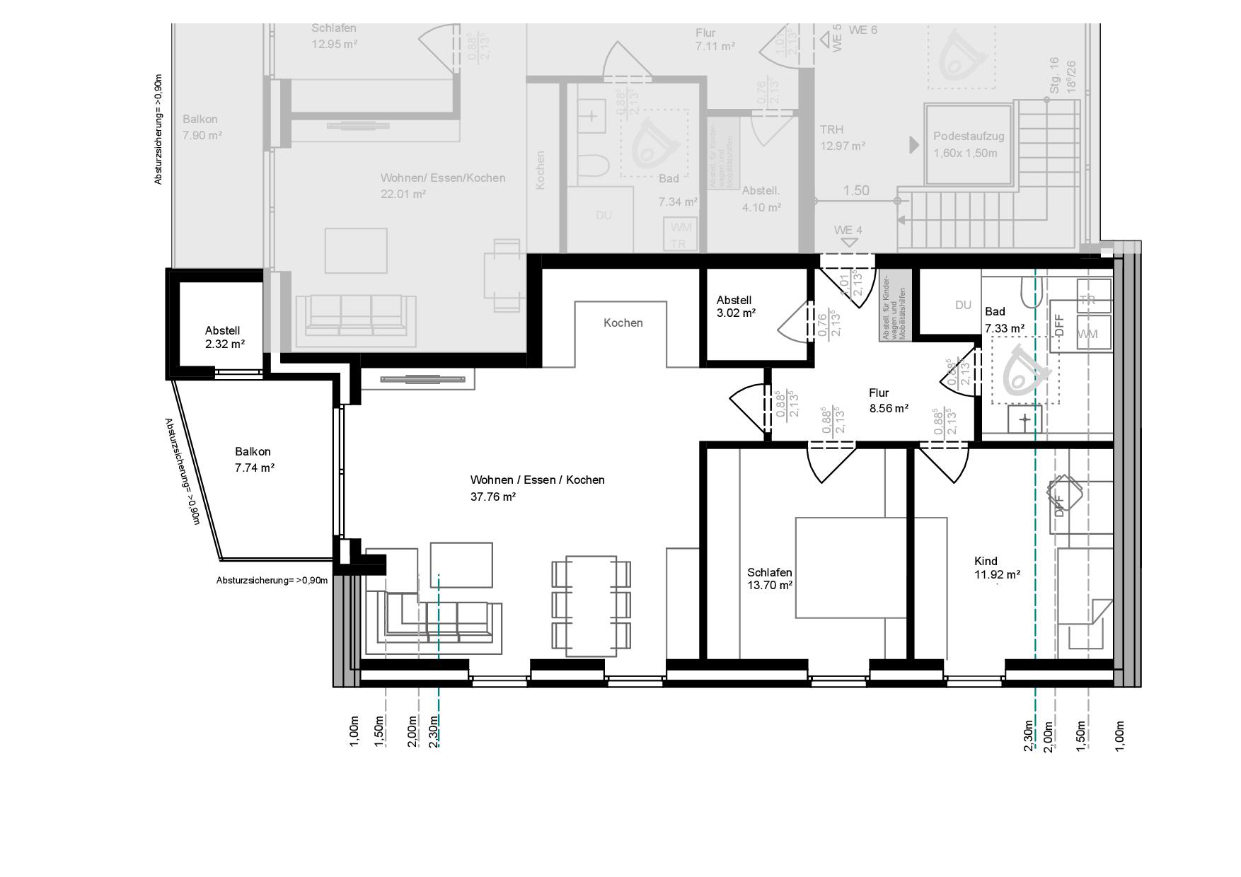
Wohnung 5 (Obergeschoss Mitte)

Drosselstr. 12

55,85 m², 3-Zimmer-Wohnung, großes Duschbad, überdachter Balkon, inkl. 1 PKW-Stellplatz

Weitere Informationen sowie Kaufpreise auf Anfrage erhalten Sie über unseren Partner Jutta Lamboury Immobilien.

Kaufanfrage

Wohnung 6 (Obergeschoss Rechts)

Drosselstr. 12

85,94 m², 3-Zimmer-Wohnung, Tageslichtbad, überdachter Balkon mit angrenzendem Abstellraum, inkl. 1 PKW-Stellplatz

Weitere Informationen sowie Kaufpreise auf Anfrage erhalten Sie über unseren Partner Jutta Lamboury Immobilien.

Verkauft

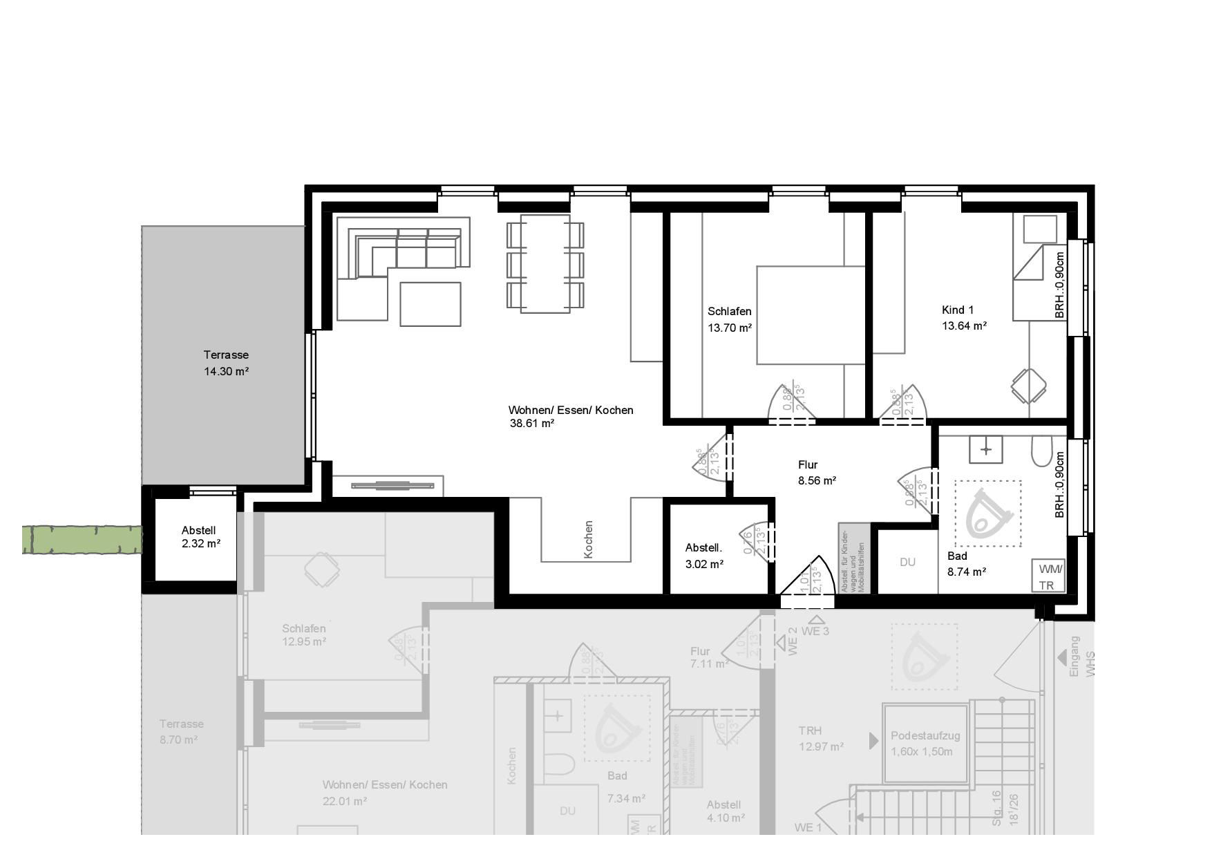
Wohnung 7 (Dachgeschoss)

Drosselstr. 12

153,33 m², 4-Zimmer-Wohnung, Tageslichtbad, Gäste-WC, großzügige Dachterrasse, inkl. 1 PKW-Stellplatz

Diese exklusive und großzügig geschnittene Wohnung geht über die gesamte oberste Etage des Gebäudes. Zu erreichen ist sie über das großzügige und helle Treppenhaus oder bequem mit dem Plattformlift. Überzeugen wird Sie unter anderem das großzügige Tageslichtbad oder auch die beiden miteinander verbundenen Terrassen, auf denen Sie die Sonne genießen und sich von dem Alltagsstress erholen können.

Der Wohnungsgrundriss ist individuell anpassbar, sprechen Sie uns an.

Weitere Informationen sowie Kaufpreise auf Anfrage erhalten Sie über unseren Partner Jutta Lamboury Immobilien.

Kaufanfrage

Hinweis:
Die verwendeten Fotos, digitalen Visualisierungen und Zeichnungen stellen lediglich Beispiele dar, die spätere Ausführung kann abweichen. Abgebildete Einrichtungsgegenstände, wie z. B. Möbel und Fernseher und Dekorationen wie z. B. Wandbilder sind ebenfalls Beispiele und gehören nicht zum geschuldeten Ausstattungsumfang.

Lageplan PDF

Weiter stöbern?

Hier gibt’s mehr Angebote.

Angebote

Kontakt
Impressum
Datenschutz
Karriere

AHAUS Baugesellschaft mbH & Co. KG
Beckermannstraße 9
48268 Greven   
Tel. 02571 2982
Fax 02571 53725
Mail service@ahaus-bau.de