Tel. 02571 2982
  • Neubau
  • Bauen im Bestand
  • Arbeiten & Reparaturen
  • Referenzen
  • Angebote
  • Wir
Tel. 02571 2982

Mehrfamilienhaus mit 8 Wohneinheiten (zum Kauf)

Saerbecker Str. 53 in Greven

Baubeginn Dez 2025 – Fertigstellung März 2027

Willkommen zu Ihrem neuen Wohntraum in Greven!
An der Saerbecker Str. 53 entsteht ein modernes Mehrfamilienhaus mit acht stilvollen Eigentumswohnungen, die sich auf vier Etagen verteilen: Erdgeschoss, Obergeschoss, Dachgeschoss und Spitzboden. Die Wohnflächen variieren zwischen 56 und 111 m² und bieten für jeden Bedarf das passende Zuhause.

Das erwartet Sie:

  • Perfekte Lage: Genießen Sie die Vorzüge einer zentralen Lage mit kurzen Wegen zu Einkaufsmöglichkeiten, Restaurants und Cafés.
  • Option betreutes Wohnen: Ideal für Senioren oder Menschen mit besonderen Bedürfnissen, die Unterstützung im Alltag wünschen. (St. Anna Seniorenzentrum, Haus Elisabeth, Saerbecker Str. 36a, 48268 Greven)
  • Elegante Ausstattung: Hochwertige Materialien und ein durchdachtes Design schaffen ein behagliches Wohnambiente.
  • Energieeffizienz: Dank moderner Heiztechnik mit einer Luft-Wasser-Wärmepumpe profitieren Sie von niedrigen Energiekosten.

Das Gebäude wird in massiver Bauweise mit einem Satteldach errichtet. Die Teilunterkellerung bietet Platz für die Haustechnik, einen gemeinschaftlich genutzten Waschraum und Abstellräume für die einzelnen Wohnungen. Über das großzügige und helle Treppenhaus oder den bequemen Plattformlift erreichen Sie mühelos jede Wohnung.

Ausstattung:

  • Plattformlift
  • Luft-Wasser-Wärmepumpe
  • Photovoltaik-Anlage
  • Fahrradunterstand
  • Fußbodenheizung
  • Fenster mit 3-fach-Verglasung
  • Elektrische Rollladen
  • Komfortable Sanitärausstattung
  • Hochwertige Elektroausstattung
  • Boden- und Wandfliesen im Badezimmer und Gäste-WC (falls vorhanden)
  • Vinylboden in allen anderen Räumen und Fluren
  • Schlüsselfertig vom Bauträger
  • Vorrichtung für Elektromobilität möglich
  • Seniorenfreundlich

Energie:
KfW 55 (Energieausweis in Bearbeitung)

Exklusive Chance – 3 Wohnungen noch verfügbar!

Lageplan PDF

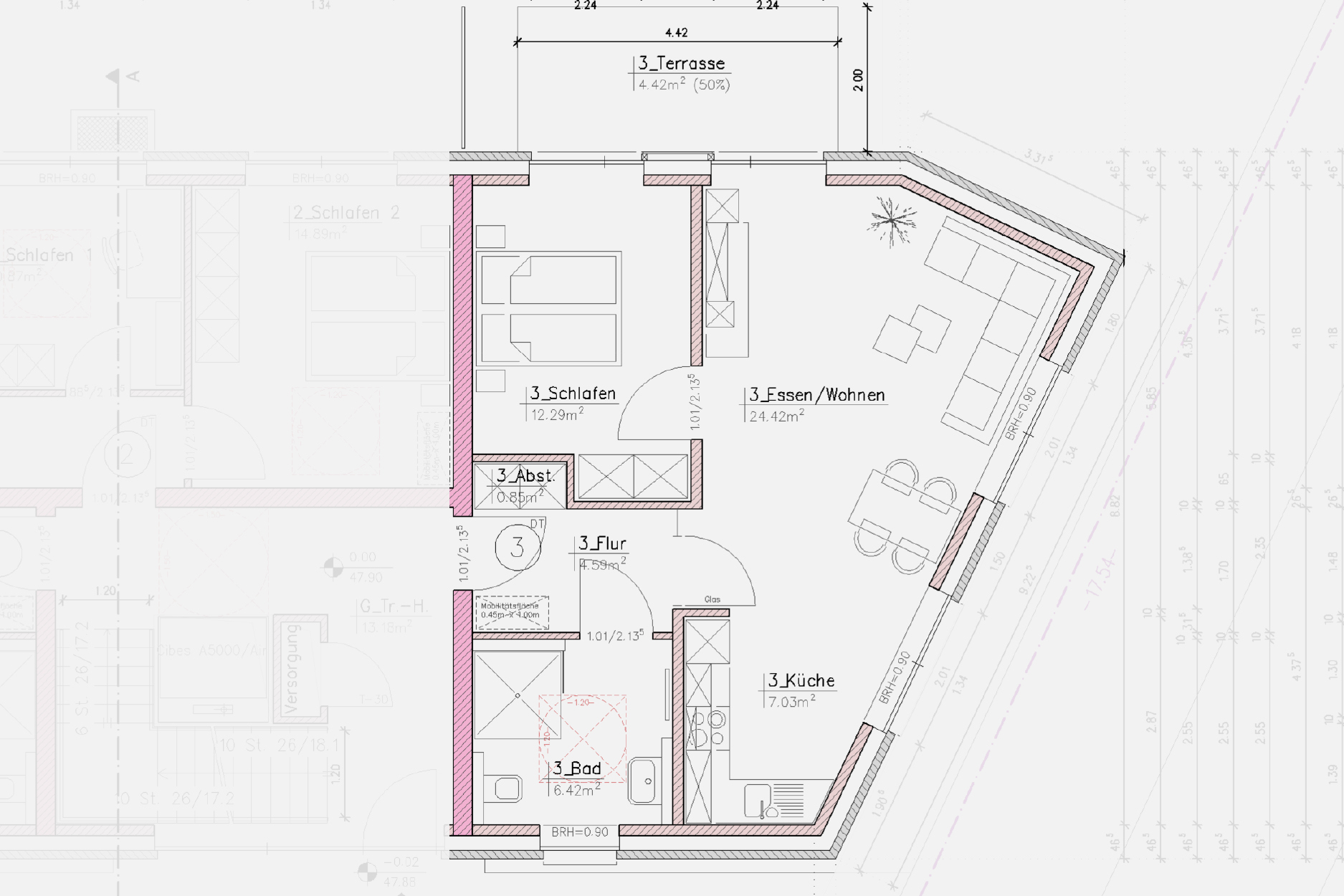
Wohnung 3 (Erdgeschoss rechts)

Saerbecker Str. 53

60 m² Wohnfläche, 2-Zimmer-Wohnung, Tageslichtbad, Terrasse, Garten, Kellerraum, inkl. 1 PKW-Stellplatz

309.000,– EUR

Kaufanfrage

Wohnung 5 (1. Obergeschoss Mitte)

Saerbecker Str. 53

80 m² Wohnfläche, 3-Zimmer-Wohnung, Balkon, Tageslichtbad, Kellerraum, inkl. 1 PKW-Stellplatz

399.000,– EUR

Kaufanfrage

Wohnung 8 (Dachgeschoss rechts)

Saerbecker Str. 53

103 m² Wohnfläche, 3 bis 4-Zimmer-Maisonettewohnung, HWR, Tageslichtbad, 15,5 m² Dachterrasse, Kellerraum, inkl. 1 PKW Stellplatz

510.000,– EUR

Kaufanfrage

Weiter stöbern?

Hier gibt’s mehr Angebote.

Angebote

Kontakt
Impressum
Datenschutz
Karriere

AHAUS Baugesellschaft mbH & Co. KG
Beckermannstraße 9
48268 Greven   
Tel. 02571 2982
Fax 02571 53725
Mail service@ahaus-bau.de