Tel. 02571 2982
  • Neubau
  • Bauen im Bestand
  • Arbeiten & Reparaturen
  • Referenzen
  • Angebote
  • Wir
Tel. 02571 2982

Mehrfamilienhaus mit 5 Wohnungen (zum Kauf)

Gustav-Tweer-Weg 24 in Münster Gremmendorf

MIT Kabinenaufzug – Geplanter Baubeginn 2025

Parallel zum Albersloher Weg – der Einkaufsstraße in Gremmendorf – realisieren wir dieses exklusive Projekt. Entstehen sollen hier ein Mehrfamilienhaus mit 5 Wohneinheiten und einer Tiefgarage und im rückwärtigen Bereich ein Einfamilienhaus (zum Angebot).

Münster-Gremmendorf ist ein junger Stadtteil Münsters. Neben der Einkaufsstraße wird derzeit die auf der gegenüberliegenden Straßenseite ehemalige York-Kaserne überplant. In dem neu entstehenden York-Quartier sollen künftig Geschäfte, Restaurants und auch eine weitere Kita entstehen. Auch Lebensmittelgeschäfte und die Bushaltestelle Münster Paul-Engelhard-Weg finden sich in fußläufiger Nähe.

Das Mehrfamilienhaus bietet den zukünftigen Bewohner:innen einen bequem über die Tiefgaragenzufahrt zu erreichenden PKW-Stellplatz, überdachte Fahrradstellplätze vor dem Haus und auch Platz für Lastenräder. Zu jeder Wohnung gehört ein eigener Kellerraum, Waschmaschinen und Trockner können im gemeinschaftlichen Waschkeller untergebracht werden.

Gerne beraten wir Sie auch hinsichtlich verschiedener Gestaltungsmöglichkeiten der Grundrisse, sodass die Wohnungen an Ihre Bedürfnisse angepasst werden.

Ausstattung:

  • Kabinenlift
  • Luft-Wasser-Wärmepumpe
  • Photovoltaik-Anlage
  • Fahrradunterstand
  • Fußbodenheizung
  • Fenster mit 3-fach-Verglasung
  • Elektrische Rollladen
  • Komfortable Sanitärausstattung
  • Hochwertige Elektroausstattung
  • Boden- und Wandfliesen im Badezimmer und Gäste-WC (falls vorhanden)
  • Vinylboden in allen anderen Räumen und Fluren
  • Schlüsselfertig vom Bauträger
  • Vorrichtung für Elektromobilität möglich
  • Seniorenfreundlich

Energie: KfW 40EE Standard. Energieausweis in Bearbeitung.

Weitere Informationen auf Anfrage.

Lageplan PDF

Gustav-Tweer-Weg 24

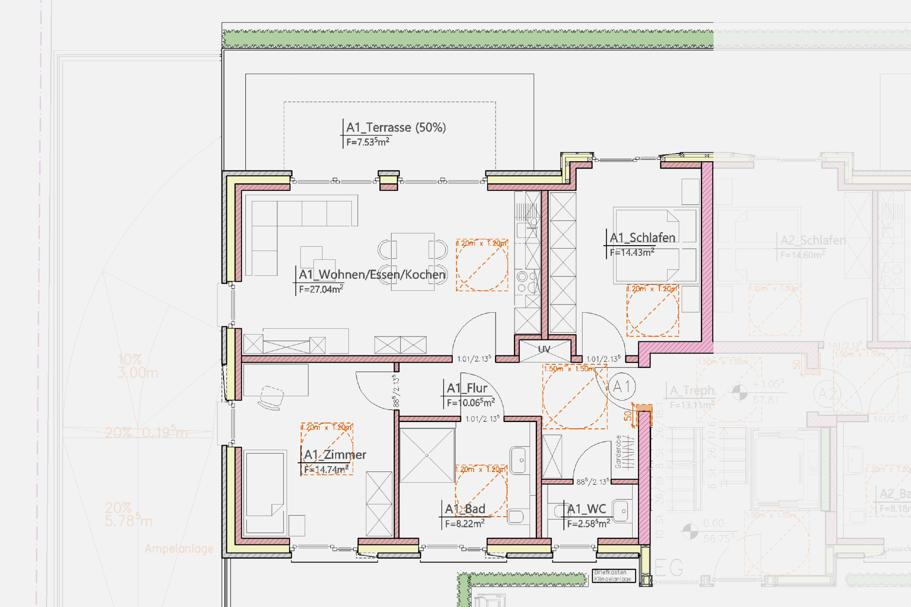
84,62 m², 3-Zimmer-Wohnung, Terrasse, Garten, Tageslichtbad u. Gäste-WC, inkl. 1 Tiefgaragenstellplatz

549.000,– EUR (VB)

Kaufanfrage

Wohnung 2 (Erdgeschoss rechts)

Gustav-Tweer-Weg 24

79,57 m², 3-Zimmer-Wohnung, Terrasse, Garten, Tageslichtbad,
inkl. 1 Tiefgaragenstellplatz

519.000,– EUR (VB)

Kaufanfrage

Gustav-Tweer-Weg 24

81,18 m², 3-Zimmer-Wohnung, Balkon, Tageslichtbad u. Gäste-WC,
inkl. 1 Tiefgaragenstellplatz

529.000,– EUR (VB)

Kaufanfrage

Wohnung 4 (Obergeschoss rechts)

Gustav-Tweer-Weg 24

76,13 m², 3-Zimmer-Wohnung, Balkon, Tageslichtbad,
inkl. 1 Tiefgaragenstellplatz

499.000,– EUR (VB)

Kaufanfrage

Wohnung 5 (Penthouse)

Gustav-Tweer-Weg 24

134,84 m², 3-Zimmer-Wohnung, Dachterrasse, Tageslichtbad, HWR, Ankleide, Gäste-WC, inkl. 1 Tiefgaragenstellplatz

889.000,– EUR (VB)

Kaufanfrage

Weiter stöbern?

Hier gibt’s mehr Angebote.

Angebote

Kontakt
Impressum
Datenschutz
Karriere

AHAUS Baugesellschaft mbH & Co. KG
Beckermannstraße 9
48268 Greven   
Tel. 02571 2982
Fax 02571 53725
Mail service@ahaus-bau.de